Choueke Family Residence

  HOME PAGEVISIT USCHEDULES & TICKET  PRICESWHO WE ARECONTACT USSPONSORSROMANTIC KOBE ATTRACTTIONS  
   
FRONT FACADE
ENTRYWAY
ROOF
GROUND FLOOR
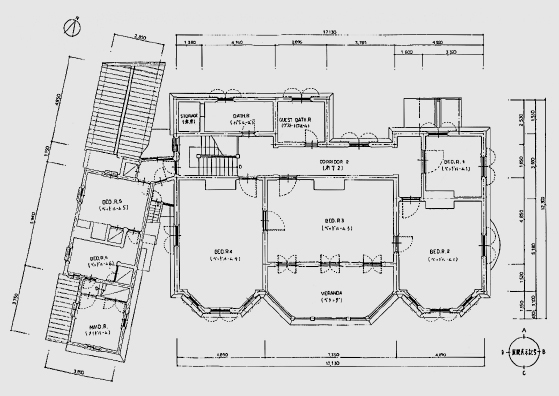
SECOND FLOOR
FIREPLACES
VERANDA
BAY WINDOWS
WOODWORK
INTERIOR DETAILS
GARDEN
 

現在2階部分は、昔と同様にシュウエケ家がプライベートで使用しています。広いベッドルーム3つと狭いベッドルーム1つ、浴室が2つあります。本を収納した図書室や広いベランダもあり、昔は神戸の有名な港や、かなたまで広がる海を目にすることができました。現在、近代的でダイナミックな神戸の街には多くの高層ビルが建ち並んでしまい、ベランダから楽しめる景色はずいぶん狭くなってしまいました。

   
Copyright © 2009 The Choueke Museum. All rights reserved.